Beschrijving
BESCHIKBAAR VOOR MAXIMAAL 2 PERSONEN ONDER DE 28 JAAR/ AVAILABLE FOR MAX 2 PERSONS BELOW 28
Nieuw in de verhuur, in het centrum van Hilversum mogen wij u dit gerenoveerde appartement aanbieden.
Rustig wonen maar wel midden in het centrum van Hilversum met alle voorzieningen kan in dit appartement.
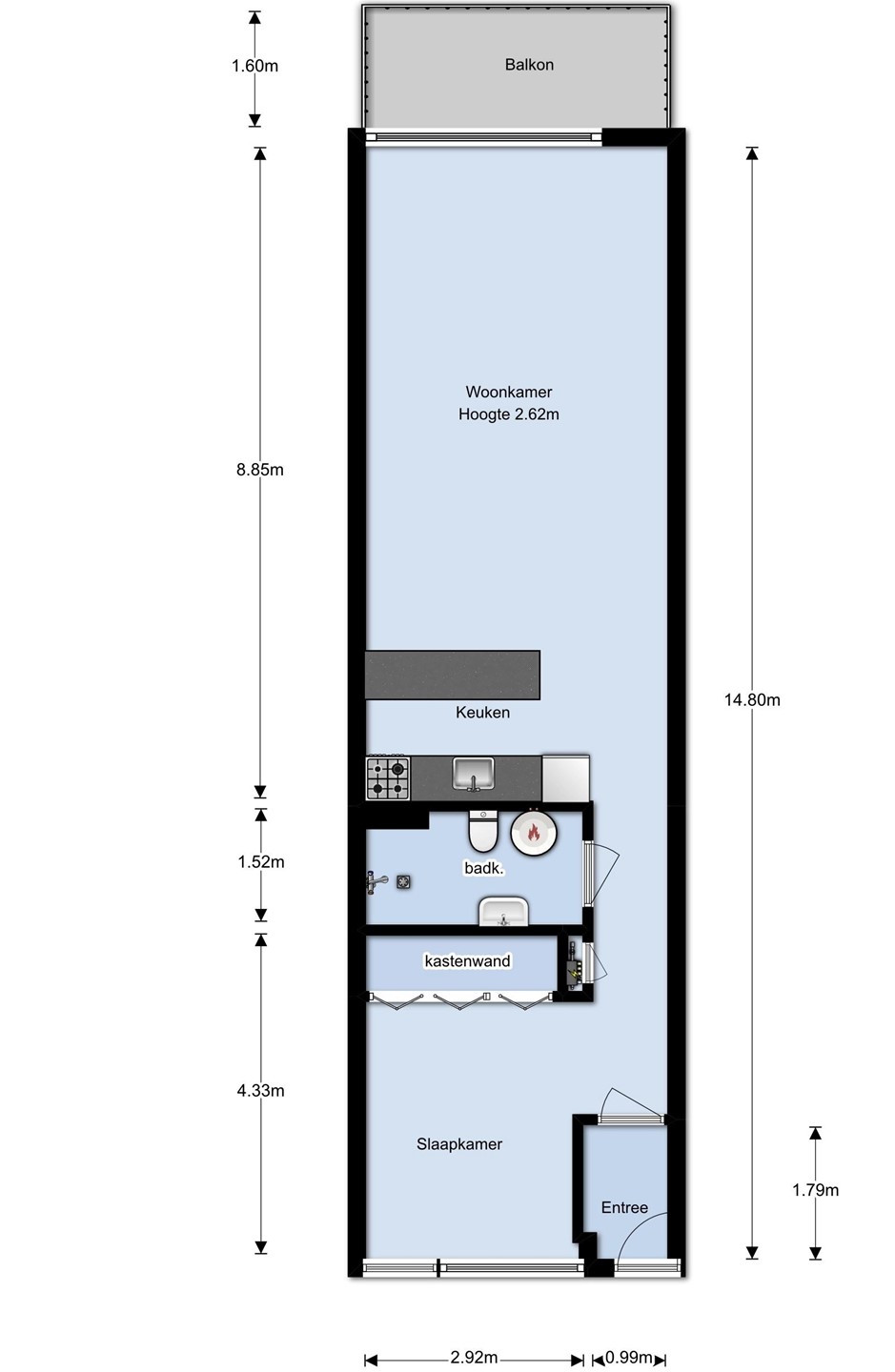
Dit bijzonder praktisch ingedeeld 2-kamerappartement is op de 3e verdieping.
Het appartement heeft de beschikking over een privé berging in de onderbouw.
Het gezellige centrum van Hilversum, restaurants, cafés, station Hilversum Centraal en diverse supermarkten zijn op loopafstand gelegen.
Daarnaast zijn uitvalswegen en diverse omliggende plaatsen gemakkelijk te bereiken.
Indeling:
• Centrale entree met brievenbussen, intercomsysteem, trapopgang en liftinstallatie
• Dit appartement is gelegen 3e etage
• Voordeur appartement, ruimte ontvangsthal met garderobe en meterkast
• Ruime woon-/eetkamer met veel daglicht, neutrale wandafwerking en een nette laminaat vloer
• Toegang tot het zonnige balkon, gelegen op het westen waardoor u geniet van de avondzon
• De keuken is recentelijk vernieuwd en voorzien van inbouwapparatuur
• Ruime slaapkamer aan de achterkant van het appartement
• Badkamer voorzien van douche, toilet, wastafel, wasmachine aansluiting en boiler
BESCHIKBAAR VOOR MAXIMAAL 2 PERSONEN ONDER DE 28 JAAR/ AVAILABLE FOR MAX 2 PERSONS BELOW 28
Bijzonderheden:
- Beschikbaar per 01-03-2026
- De huurprijs is exclusief Gas en Stroom
- De huurprijs is exclusief € 90,- per maand voorschot blokverwarming en water
- Waarborgsom één maand huur
- Gestoffeerd
- Gunning eigenaar
Voor de selectieprocedure verwijzen wij u naar:
https://www.pararius.nl/info/selectieprocedure-huurder
Voor meer informatie of het bezichtigen van deze woning kunt u contact opnemen met Stam Vastgoed, 035-2018411 of info@stamverhuur.nl